CALL 0401 394 964
Home
Services
Gallery
Contact
Home
Services
Gallery
Contact
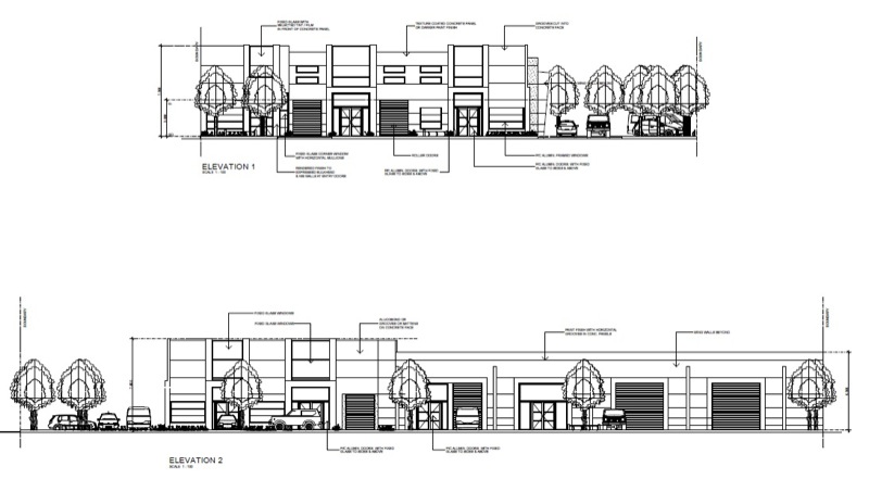
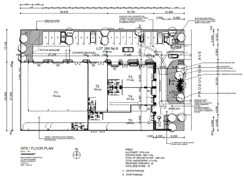
Design to Detail | Noosa Industrial Park
16632
portfolio_page-template-default,single,single-portfolio_page,postid-16632,ajax_fade,page_not_loaded,,qode-theme-ver-5.9,wpb-js-composer js-comp-ver-4.3.4,vc_responsive
Noosa Industrial Park
web-8-Production-Coloured-3D
web-Elev-1
web-Plan
About This Project
Noosa – Industrial Pk – Concept
Category
Commercial
Share